Khu đô thị mới Đông Bắc (K1)
Hoàn thành
2021
Loại hình
Khu đô thị
Quy mô
60 ha
Tổng vốn đầu tư
1.200 tỷ đồng

Mô tả dự án
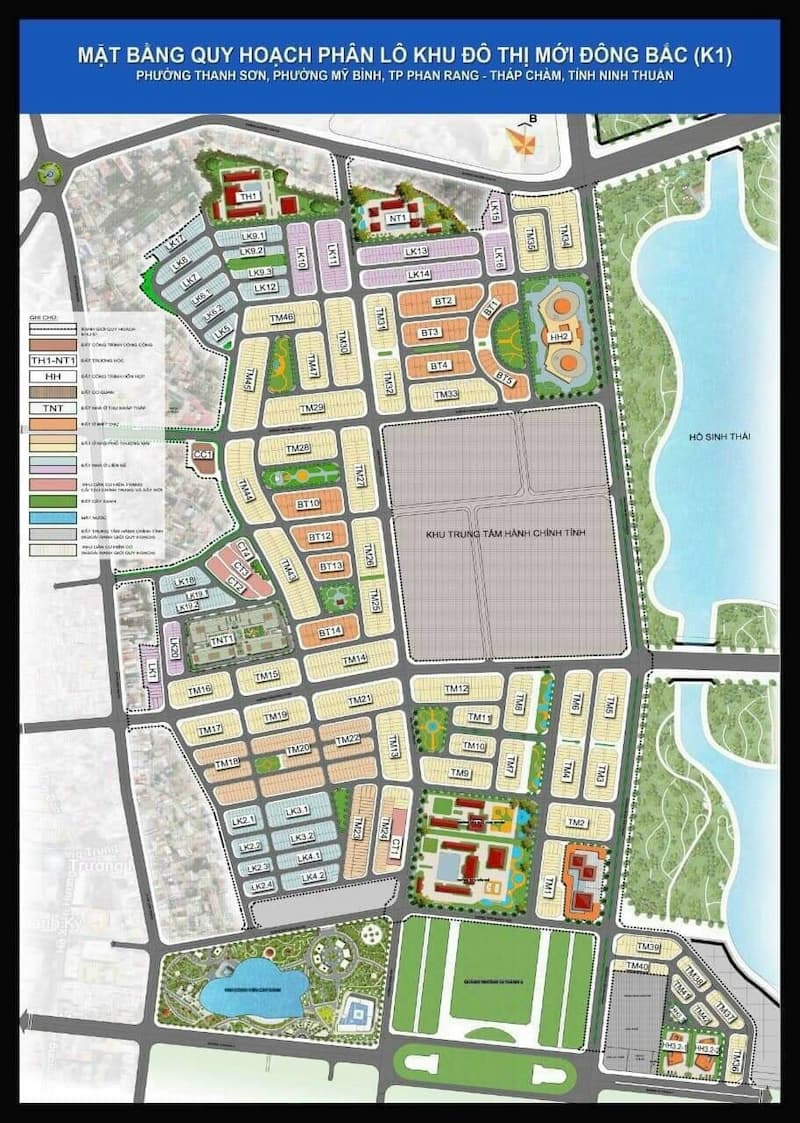
Khu đô thị mới Đông Bắc K1 là một trong những dự án trọng điểm của Công ty Cổ phần Đầu tư Hacom Holdings. Dự án được định vị là khu đô thị kiểu mẫu hiện đại, góp phần mở rộng không gian đô thị TP. Phan Rang – Tháp Chàm (cũ), nay là phường Đông Hải, tỉnh Khánh Hòa, trở thành điểm nhấn phát triển kinh tế – xã hội tại địa phương.
Với quy mô dân số dự kiến từ 8.000 – 10.000 cư dân, khu đô thị được quy hoạch đồng bộ, hiện đại, đáp ứng đa dạng nhu cầu về nhà ở, kinh doanh và dịch vụ. Các sản phẩm chủ lực của dự án bao gồm:
Căn hộ cao tầng tại Hacom Tower, trung tâm thương mại – dịch vụ sầm uất bậc nhất khu vực.
Nhà phố thương mại (shophouse) Hacom Mall kết hợp kinh doanh và an cư, mang lại giá trị sinh lời bền vững.
Biệt thự song lập và đơn lập dành cho khách hàng cao cấp, được thiết kế theo phong cách hiện đại, hòa hợp cùng thiên nhiên.
Các lô đất nền quy hoạch chuẩn chỉnh, hạ tầng hoàn thiện, tạo điều kiện cho cư dân tự do phát triển mô hình nhà ở riêng.
Không chỉ là dự án nhà ở, Khu đô thị mới Đông Bắc mang ý nghĩa chiến lược trong phát triển kinh tế – xã hội của khu vực.
Tổng quan
- Chủ đầu tư: Công ty Cổ phần Thành Đông Ninh Thuận.
- Quy mô: 60ha
- Sản phẩm: biệt thự, nhà liền kề, shophouse, chung cư cao cấp, TTTM và nhà ở xã hội.
- Hạ tầng tiện ích: Công viên cây xanh, vườn hoa, khu vui chơi...
Kêt nối tiện ích
ĐỊA CHỈ
Phường Đông Hải, tỉnh Khánh hòa
Tiện ích khu vực
Hồ điều hòa
Trường liên cấp
Quảng trường
Bảo tàng
Công viên
Ngân hàng
Trung tâm thương mại
